CAD Drafting..
Quick Turnaround
Fast results without delays
CAD Domain Experts Services
Specialized expertise in CAD
Cost Effective
Affordable solutions with value
Quick Learning and Delivery
Adapt fast, deliver faster
Client Satisfaction Services
Focused on happy clients
Integrated BIM Solutions: Worldwide CAD Drafting Solutions
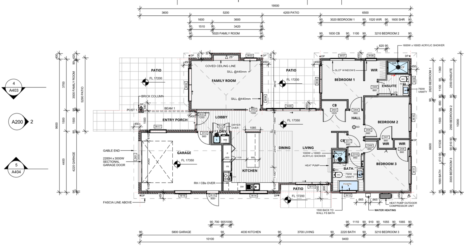
CAD Drafting has transformed the design and engineering industry by delivering precise 2D models, replacing traditional hand-drawn methods. For the past 5 years, Integrated BIM Solutions has been providing high-quality CAD drafting services to the Architecture, Engineering, and Construction (AEC) sectors. With a team of over 400 qualified professionals holding accredited degrees and CAD certifications, we ensure accuracy and excellence in every project. Today, we are recognized as one of the most trusted outsourcing companies for delivering reliable and top-quality CAD drafting solutions worldwide.
Our Globally Known CAD Services
Our Professionals with CAD Expertise
Architects
Building Engineers
Civil Engineers
Construction Professionals
Mechanical Engineers
Electrical Engineers
Structure Engineers
Fire and Plumbing Engineers
